公司簡介
金湖金儀自動化儀表有限公司座落在美麗富饒的高郵湖畔,有“天下第一荷花”美稱的魚米之鄉——江蘇淮安市金湖境內,交通方便,東臨京滬高速、西靠寧連高速、鹽金線貫穿境內,是生產銷售流量儀表、溫度儀表、壓力儀表、校驗儀表的企業。企業生產的熱工儀表、壓力儀表、標準校驗儀表、數控儀表、流量儀表廣泛使用在石油、化工、電力、冶金、科研以及國防等行業的自動化控制過程中,深受用戶歡迎。
公司是專業的電磁流量計,渦街流量計,金屬管浮子流量計,節流裝置等流量儀表的生產銷售企業,致力于流量計的研制、開發工作,博采眾家所長,集合優勢人才創造出更高端的流量計產品,超聲波系列流量計也得到廣大用戶的充分認可。
企業視信譽為生命,堅持全心全意為顧客服務的方針,通過多年來的項目實施,企業走出了一條科技創新的發展之路,不僅結識了眾多科技合作伙伴,而且還培養了一批具有開拓創新的科技人才;產品的技術含量逐步提高,目前已具有與國際先進水平相競爭的能力。幾年來的成功收獲使金儀人更加體會到"科學技術是第一生產力"這一真締。
我們本著質量第一,服務第一,誠信第一的宗旨。愿與客戶攜手,與科技同行,以全新的營銷策略,走向更廣闊的市場。
展開
產品說明
| 、 |
用途 |
| |
| JY-1151LT液位變送器是一種直接安裝在管道或容器上的現場變送器。由于隔離膜片直接與液體介質相接觸,無須將正壓側用導壓管引出,因此可以測量高溫、高粘度、易結晶、易沉淀和強腐蝕等介質的液位、壓力和密度,然后將其轉換成4~20mA.DC信號輸出。LT型液位變送器采用標準的法蘭進行安裝聯接。 |
|
| 二、 |
通用技術性能和參數 |
| |
輸出信號:4~20MA.DC二線制(模擬)
二線制4~20mA直流信號上疊加數字信號,由用戶選擇線性或開方輸出。(智能)
供電電源:12~45V.DC(詳見負載特性圖)
負載特性: |
|
| |
電源影響:<0.005%/V
負載影響:電源穩定時,無負載影響。
測量精度:調校量程的±0.2%,±0.25%,±0.5%
(標配精度為±0.5%,若選擇其他精度請在訂貨選
型時注明。)
遷移特性:zui大正遷移量500%
zui大負遷移量600%
注:① 負遷移量的值,不大于一個工程大氣壓。
② 遷移后的上限或下限值,均不應超過zui大測量范圍的上限值。
③ 差壓流量變送器遷移會破壞開方特性,故不能進行遷移。
④ 壓力變送器不能進行負遷移。 |
 |
|
| |
阻 尼:通常可在0.2~1.67秒之間可調,當灌充惰性液或帶遠傳裝置時,時間常數會增大。
啟動時間:<2秒,不需預熱
工作環境:環境溫度 -29~93℃(模擬放大器)
-29~75℃(數字/智能放大器)
-29~65℃(帶顯示表頭)
環境濕度 0~95%
防護特性:防護能力 IP65
防爆類型:隔爆型 Exd II BT4-6
本安型 Exia II CT5
靜壓影響:DP類零位誤差:對于14MPa,±0.1%zui大量程限值或±0.25%zui大量程限值(量程代號為3),在管道壓力下通過調零給予校正。
HP類零位誤差:±0.5%zui大量程限值,對于32MPa在管道壓力下通過調零給予校正。
電磁輻射影響:0.05%zui大量程值,接受輻射頻率27~500MHz,試驗場強3V/m。
指示表(%):電流表 標尺長44.5mm 精度±2%
液晶數顯 精度±0.2%
振動影響:任何方向200Hz振動時,±0.05%/g。
安裝位置:膜片未垂直安裝,可能產生小于0.24KPa的零點誤差,但可通過調零來消除。
重 量:5.4Kg(不包括附件) |
|
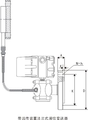
| 三、 |
典型產品外形尺寸 |
| |
|
| |
|
| |
|
法蘭規格
|
外形尺寸
|
安裝尺寸
|
插入筒尺寸
|
|
代號
|
通徑
|
壓力等級
|
外徑
D
|
凸面直徑
d
|
厚度
A
|
凸面高
f
|
分布圓
K
|
螺孔數
n
|
直徑
h
|
螺栓
f
|
直徑
B
|
凸出長度
L
|
|
2A1
|
2"
|
150Lb
|
Φ152
|
Φ92
|
23
|
5.5
|
Φ120.6
|
4
|
Φ19
|
M16
|
暫供Φ60
|
0 (0")
50 (2")
100(4")
150(6")
200(8")
250(10")
|
|
2A3
|
300Lb
|
Φ165
|
26
|
Φ127
|
8
|
|
2A6
|
600Lb
|
31
|
|
2D1
|
DN50
|
PN10/16 bar
|
Φ99
|
21
|
Φ125
|
4
|
|
2D3
|
PN25/40 bar
|
23
|
|
2D6
|
PN64 bar
|
Φ180
|
29
|
Φ135
|
Φ23
|
M20
|
|
3A1
|
3"
|
150Lb
|
Φ191
|
Φ127
|
27.5
|
Φ152.4
|
Φ19
|
M16
|
Φ77
|
|
3A3
|
300Lb
|
Φ210
|
32.5
|
Φ168.3
|
8
|
Φ23
|
M20
|
|
3A6
|
600Lb
|
37.5
|
|
3D1
|
DN80
|
PN10/16 bar
|
Φ200
|
Φ132
|
23
|
Φ160
|
Φ19
|
M16
|
|
3D3
|
PN25/40 bar
|
26.5
|
|
3D6
|
PN64 bar
|
Φ215
|
32.5
|
Φ170
|
Φ23
|
M20
|
|
4A1
|
4"
|
150Lb
|
Φ229
|
Φ157
|
28
|
Φ190.5
|
Φ19
|
M16
|
Φ95
|
|
4A3
|
300Lb
|
Φ254
|
33.5
|
Φ200
|
Φ23
|
M20
|
|
4A6
|
600Lb
|
Φ273
|
43.5
|
Φ216
|
Φ25
|
M22
|
|
4D1
|
DN100
|
PN10/16 bar
|
Φ220
|
Φ166
|
23
|
Φ180
|
Φ19
|
M16
|
|
4D3
|
PN25/40 bar
|
Φ235
|
28.5
|
Φ190
|
Φ23
|
M20
|
|
4D6
|
PN64 bar
|
Φ250
|
34.5
|
Φ200
|
Φ27
|
M24
|
|
| 四、 |
JY-1151LT型法蘭式液位變送器 |
| |
| 代號 測量范圍 (KPa) |
|
3
4
5
6
|
0 - 1.3
0 - 6.2
0 - 31.1
0 - 117
|
~ 7.5
~ 37.4
~ 186.8
~ 689.5 |
注:量程代號為3時,宜配用通徑4"或DN100法蘭。 |
|
| |
| 代號 輸出形式 |
|
E
SF
S
|
4~20mA.DC 模擬放大器,線性輸出
4~20mA.DC 數字放大器,帶4位LCD數字或3 LED顯示
4~20mA.DC 智能放大器,并采用HART協議通訊 |
|
| |
| 代號 負壓側容室和接頭材質 排氣/排液閥材質 隔離膜片材質 |
12 碳鋼 316鋼 316L鋼
22 316鋼 316鋼 316L鋼
23 316鋼 316鋼 哈氏合金C
24 316鋼 316鋼 蒙耐爾合金
25 316鋼 316鋼 鉭
33 哈氏合金C 哈氏合金C 哈氏合金C
35 哈氏合金C 哈氏合金C 鉭 |
|
| |
| 代號 正壓側隔離膜片材質 接液密封面材質 |
A 316L鋼
B 哈氏合金C 平法蘭式與遠傳膜片
C 鉭 相同材料
N 鎳200
V 蒙耐爾合金 凸法蘭式均為316鋼
H 鈦 |
|
| |
| 代號 安裝法蘭通徑 |
2 通徑2"或DN50
3 通徑3"或DN80
4 通徑4"或DN100 |
|
| |
| 代號 安裝法蘭標準 |
|
A ANSI或HG20615
D DIN和HG20592 |
注:供貨產品的密封面為RF型突面式。
根據需要可提供:MFM型凹凸面式、TG型榫槽面式、或RJ型環連接面式。 |
| 代號 壓力等級 |
1 150Lb或PN10/16bar
3 300Lb或PN25/40bar
6 600Lb或PN64bar |
|
|
| |
| 代號 灌充液 |
L 低粘度硅油 -60~150℃ ρ=0.93
S 普通硅油 -45~250℃ ρ=0.96 |
|
| |
| 代號 膜片凸出長度(mm) |
0 0(平膜片形式)
2 50(2")
4 100(4")
6 150(6")
8 200(8")
10 250(10") |
注:可供非系列長度。 |
|
| |
| 代號 選用件 |
S 負壓側帶一個遠傳裝置
M1 線性指示表 0~100%刻度
M3 數顯指示表 4位LCD數字或3 LED顯示
d 隔爆型,防爆標志ExdⅡBT4-6
I 本安型,防爆標志ExiaⅡCT5 |
注:“□" 內填入毛細管長度代號:05(1.5米)、10(3米)或15(4.5米),一般負壓側提供扁平式。
|
|
| |
|
本頁產品地址:http://www.521uz.com/sell/show-3432.html